加地ビル詳細情報
加地ビルは中区栄3丁目にあり、久屋大道に面するビルです。 地下鉄名城線「矢場町」駅出口すぐという好立地物件です。
また、パルコ等の商業施設にもほど近く、集客力の高い物件となっています。
| 交 通 | 地下鉄名城線矢場町駅4番出口より5M |
|---|---|
| 所 在 地 | 名古屋市中区栄三丁目 |
| 築 年 月 | 1966年4月 |
| 種 類 | 事務所・店舗 ※飲食店は不可 |
| 構 造 | 鉄筋コンクリート造陸屋根 地下1階付7階建 ※見た目は5階建です |
| 駐 車 場 | あり ※ビル南側にコインパーキング |
| エレベータ | あり 定員6名 積載量400kg |
| ト イ レ | 1F 男性用の共用トイレ 2F 女性用の共用トイレ |
| 湯 沸 場 | 1Fおよび2Fに設置 ※未改修です |
| ポ ス ト | あり ※入居時に好きな場所を選択 |
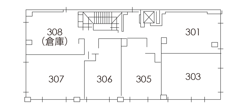
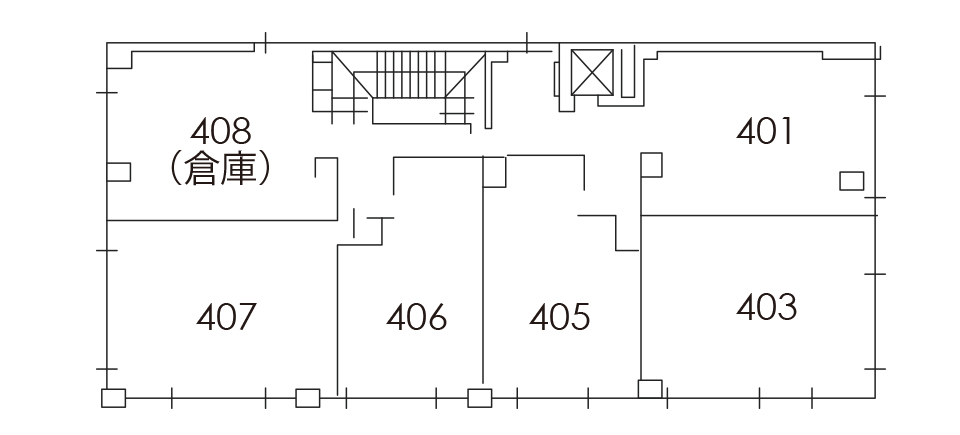
| 倉 庫 | あり ※1F奥に別建物あり ※本建物の住居エリアを活用可能 |
| 営 業 時 間 |
原則6:30~22:00迄 ※全テナント退去を確認後に小シャッターの鍵を閉めます |
| テナント様への 協力要請事項 (年次分) |
・消火設備点検(年1回) ・エレベータ点検(年4回) ・ガラス拭き(年1回) ・全館停電(年1回) ・電気メータ検針(月1回) ・水道メータ検針(奇数月) |
